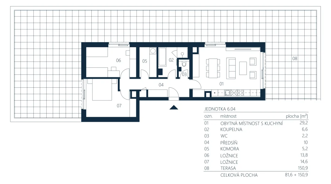
Byt 6.04
3+kk
ozn.
místnost
plocha (m2)
01
obytná místnost s kuchyní
29,2
02
koupelna
6,6
03
wc
2,2
04
předsíň
10,0
05
komora
5,2
06
ložnice
13,8
07
ložnice
14,6
08
terasa
150,9
Cena
Na dotaz
Stav:
K dispozici



































